ОД (Пром)
Чтобы подобрать откатные холодильные двери, нужно знать тип и ширину проема, температурный режим в камере, габариты, а также условия эксплуатации.
Назначение
- для товара, находящегося в упакованном виде;
- в холодильных и морозильных помещениях любого объема, – от небольших камер до больших складов и производств;
- в местах прохода людей, провоза ручных тележек с грузом, механизированных погрузчиков;
- в помещениях с использованием монорельса;
- в условиях отсутствия содержания соли в воздухе;
- в помещениях, где отсутствует не упакованное мясо, кровь, потроха, шкуры и т.д.;
- в условиях постоянной 80% влажности и температуры от -35…+55°С, и непродолжительной влажности 100%;
- в условиях отсутствия химической обработки полотна двери жидкостями, вызывающими коррозию алюминия;
- в помещениях с отсутствием завышенных требований к гигиене;
- в условиях отсутствия крупной пыли и абразива в воздухе;
- максимальной площади монтажного проема не более 15 м².
| Средний холод | Низкий холод | Шоковая заморозка | ||
|---|---|---|---|---|
| ...-5 0C | -6...-18 0C | -19...-22 0C | -23...-25 0C | -26...-33 0C |
| 80 мм | 80 мм | 100 мм | 120 мм | 150 мм |
Полотно двери
- Многослойная сэндвич панель (оцинкованный лист крашеная сталь 0,6 мм + ППУ + оцинкованный лист крашеная сталь 0,6 мм)
- Толщина полотна S: 80мм; 100мм; 120мм; 150мм
- Цвет полотна: стандартный - RAL9003 (белый)
- Разрыв мостика холода – пластиковый профиль
- Уплотнитель – резиновый профиль по периметру полотна, в один или два контура, в зависимости от температурного исполнения двери. Жесткое крепление через прижимной профиль. Нижний уплотнитель повышенной износостойкости.
Рама двери
- Накладная рама состоит из анодированного алюминиевого профиля с алюминиевой заглушкой для закрытия крепежных мест и пластиковой заглушкой ПЭНа (провода электрического нагревательного);
- Мощность ПЭНа в раме составляет 25Вт/м.пог;
- Рама собирается на месте эксплуатации при помощи комплектов уголков;
- В комплект входит обрамление проема "Г"- образной формы из стали 0.6мм RAL 9003;
- В поставку входит комплект крепежных элементов. На выбор предоставляется широкий ассортимент метизов под любую стену;
- О других вариантах рам смотрите в разделе опции.
Порог усиленный
- Входит в комплект поставки для низкотемпературных дверей;
- Порог позволяет качественно отделить теплую зону пола от холодной, что сохраняет пол от растрескивания;
- Выполнен из профиля 60х60х4,0мм - выдерживает проезд тяжелой механизированной техники;
- Материал порога – пищевая нержавеющая сталь AISI304;
- Дополнительные ребра жесткости по всей длине, усиливают порог, создают острую кромку контакта с бетоном, что сохраняет бетонное основание от разрушения;
- Кронштейны для позиционирования порога, позволяют осуществлять установку порога при заливке полов, не имея в наличии дверей;
- Зацепы по длине служат для жесткой фиксации порога в полу;
- Идеально ровная поверхность, обеспечит плотное прилегание и продлит срок службы уплотнителя;
- Поставляемый комплект крепежа, необходим для фиксации и регулировки порога в плоскости пола;
- Металлический кабель канал для установки ПЭНа обеспечивает качественный обогрев пороговой части;
- Мощность ПЭНа в пороге составляет 50 Вт/м.пог;
- Завод рекомендует монтировать порог до заливки пола бетоном.
Обозначение дверей
Пример для Откатной Двери (Промышленной серии), с Шириной светового проема 1800мм, Высотой светового проема 2200мм, стандартной толщиной полотна 100мм, Низкотемпературного исполнения, Правый откат двери (дверь открывается вправо), с замком:
ОД(Пром)-1800.2200-100/Н-Пр, с замком
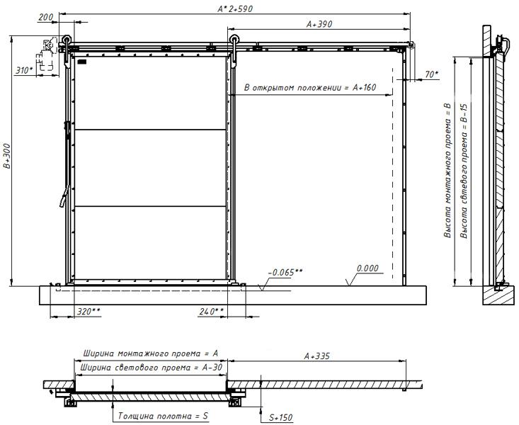
Габаритные размеры

- Размер для двери с электроприводом *
- Размер для низкотемпературной двери **
Стандартная комплектация
- Дверное полотно в сборе (упаковано в картонную коробку)
- Дверная рама в разобранном виде (упаковано в картонную коробку)
- Комплект крепежных элементов, паспорт, инструкция (упаковано в картонную коробку)
- Комплект направляющих трубной откатной системы Tube300 (упаковано в картонную коробку)
- Комплект ручек (упаковано в картонную коробку)
- Комплект швеллеров обрамления проема, входит в комплект в случае установки на сэндвич-панель (упаковано в стрейч пленку)
- Усиленный порог, монтируется в уровень с полом, входит в стандартный комплект при низкотемпературном исполнении (упаковано в стрейч пленку)
Комплект фурнитуры (стандартные варианты)
- Рельса - труба стальная нержавеющая d60мм. Кронштейны - оцинкованная сталь. Ролики - высокопрочный пластик;
- Элементы системы поставляются в максимальной заводской готовности, все крепежные места имеют подготовленные резьбовые отверстия;
- Регулировка с широким диапазоном, осуществляется в трех плоскостях;
- Изгиб рельсы в конечной стадии закрытия позволяет поджать полотно к раме и к порогу, что резко снижает износ всей конструкции;
- Глубокий резиновый буфер, с двух сторон, смягчает фиксацию полотна в конечных стадиях открытия-закрытия;
- На кронштейне ролика установлен ограничитель, исключающий возможность соскока полотна с рельсы;
- Ресурс испытаний - более 250000 циклов.
Система нижнего прижима полотна:
- Обеспечивает дополнительное поджатие полотна к раме и порогу, в конечной фазе закрытия;
- Комплект прижимного и направляющего башмаков изготовленных из высокопрочного пластика с металлической вставкой AISI304, устанавливающихся в пол. Производство «ETERNA»;
- Башмаки устанавливаются через широкие пластины AISI304 с разнесенными точками крепления в пол, что позволяет исключить выкрашивание бетона и распределить нагрузку;
- Крепление осуществляется при помощи анкеров, входящих в комлект поставки;
- Направляющая устанавливается на полотне, выполнена из анодированного алюминиевого профиля. Дополнительно защищает нижнюю кромку полотна от механического воздействия.

Замок накладной 9700НР;

Замок штифтового типа W.150.

Ручка-скоба 2420;

Ручка-рычажная W.124Z-M;

Ручка-рычажная W.124Z (удлиненная).

Ручка-мыльница W.093;

Ручка-рычажная W.104;

Ручка внешняя W.082 (удлиненная).
Мы рекомендуем устанавливать МДД(Пл), в тандеме с откатной дверью, для минимизации потерь холода во время работы с открытой камерой при транспортировании на ручных тележках или механизированных погрузчиках.
МДД (Пст) рекомендуется устанавливать без остекления в паре с откатной дверью для минимизации потерь холода во время работы с открытой камерой при транспортировании на ручных тележках, при механизированных погрузчиках, а так же в местах прохождения груза по монорельсам.
Холодильные откатные двери ОД(Пром) производства завода «Ирбис» могут быть изготовлены со следующими дополнительными опциями:
- Эксклюзивные цвета (по запросу заказчика)
- Отбойник плоский
- Швеллер обрамления проема
- Внутренняя рама
- Полотно в разобранном виде
- Внутреннее открывание
- Защитный кожух
- Пороговое исполнение
- Электропривод
- Встроенная РДО(Пром)-800.2000
- Встроенное окно
- Дверь с пандусом
- Монорельс
- Защитное ограждение
