ОД (СН)
Холодильные двери ОД (СН) предназначены для использования в средне- и низкотемпературных холодильных камерах и складах. Откатные двери специального назначения изготавливаются под дверные проемы с любыми парамметрическими показателями. Холодильные двери производства завода Ирбис - это качественное и надежное оборудование для Вашего склада или морозильной камеры.
Назначение
- в холодильных и морозильных помещениях любого объема, – от небольших камер до больших складов и производств;
- в местах прохода людей, провоза ручных тележек с грузом, механизированных погрузчиков;
- в помещениях с использованием монорельса;
- в условиях отсутствия содержания соли в воздухе;
- в помещениях, где отсутствует не упакованное мясо, кровь, потроха, шкуры и т.д.;
- в условиях постоянной 80% влажности и температуры от -35…+55°С, и непродолжительной влажности 100%;
- в условиях отсутствия химической обработки полотна двери жидкостями, вызывающими коррозию алюминия;
- в помещениях с отсутствием завышенных требований к гигиене;
- в условиях отсутствия крупной пыли и абразива в воздухе;
| Средний холод | Низкий холод | Шоковая заморозка | ||
|---|---|---|---|---|
| ...-5 0C | -6...-18 0C | -19...-22 0C | -23...-25 0C | -26...-33 0C |
| 80 мм | 80 мм | 100 мм | 120 мм | 150 мм |
Полотно двери
- Многослойная сэндвич панель (лист нержавеющая сталь AISI304 0,8 мм + ППУ + лист нержавеющая сталь AISI304 0,8 мм
- Толщина полотна S: 80мм; 100мм; 120мм; 150мм;
- Цвет полотна: стандартный - RAL9003 (белый)
- Разрыв мостика холода – пластиковый профиль
- Уплотнитель – резиновый профиль по периметру полотна, в один или два контура, в зависимости от температурного исполнения двери. Жесткое крепление через прижимной профиль. Нижний уплотнитель повышенной износостойкости.
Рама двери
- Стальной С-образный профиль;
- Материал – Сталь нержавеющая AISI304 2,0 мм;
- Крепление скрытым способом. Расчет и подготовка точек крепление осуществляется на заводе. Крепежный элемент устанавливается внутрь рамы. Отверстие закрывается декоративной заглушкой, минимальной высоты, почти в плоскость с рамой;
- По периметру рамы для плотного прилегания к проему, проклеена специальная лента;
- Внутри рамы для провода ПЭНов выполняется система каналов, позволяющая заменить ПЭН в считанные секунды, без использования инструментов.
Порог усиленный
- Входит в комплект поставки для низкотемпературных дверей
- Профиль 60х60х4,0мм - выдерживает проезд тяжелой механизированной техники
- Материал – пищевая нержавеющая сталь AISI304 - не корродирует
- Дополнительное ребро жесткости – усиливает порог, сохраняет бетонное основание от разрушения
- Металлический кабель канал для проводки ПЭНа – качественный обогрев уплотнителя, простота замены ПЭНов
- Кронштейны для позиционирования порога – позволяет осуществлять установку порога при заливке полов, не имея в наличии дверей
- Зацепы по длине – для жесткой фиксации порога в полу
- Комплект крепежа – фиксация и регулировка порога в плоскости пола
- Идеально ровная поверхность - обеспечит плотное прилегание и продлит срок службы уплотнителя
- Порог позволяет качественно отделить теплую зону пола от холодной, что сохранит пол от растрескивания.
Порог швеллер
- Входит в комплект поставки для РДО(СН) низкотемпературного исполнения;
- Порог позволяет качественно отделить теплую зону пола от холодной;
- С-образный профиль выполнен из пищевой нержавеющей стали S=2,0 мм;
- Идеально ровная поверхность, обеспечит плотное прилегание и продлит срок службы уплотнителя;
- Жесткая фиксация к раме двери;
- Имеет металлический кабель канал для установки ПЭНа;
- Завод рекомендует монтировать порог до заливки пола бетоном.
Обогрев уплотнителя
- Входит в комплект поставки для низкотемпературных дверей;
- ПЭН (Провод Электро Нагревательный) – 50 Вт/м – 4 шт;
- Проводится в дверной раме и пороге, осуществляя качественный обогрев уплотнителя (без перегрева) по всему периметру полотна.

Обозначение дверей
Пример для Откатной Двери (Специального Назначения), с Шириной светового проема 1800 мм, Высотой светового проема 2200 мм, стандартной толщиной полотна 100 мм, Низкотемпературное исполнение, Правый откат, исполнение двери «без порога», с замком:
ОД(СН) -1800.2200/100-Н-Пр, без порога, с замком
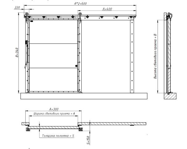
Габаритные размеры

Максимальные габариты полотна двери:
Для фурнитуры Tube300: площадь монтажного проема не более 15,0 м²
Стандартная комплектация РДО(СН)
- Дверное полотно в сборе с рамой (упаковано в картонную коробку);
- Комплект крепежных элементов (упаковано в картонную коробку).
Стандартная комплектация РДД(СН)
- Комплект полотен (упаковано в картонную коробку);
- Рама в разобранном виде (упаковано в картонную коробку);
- Комплект крепежных элементов (упаковано в картонную коробку).
Фурнитура
Комплект фурнитуры (стандартные варианты)
- Материал – сталь пищевая нержавеющая AISI304;
- Элементы системы поставляются в максимальной заводской готовности, все крепежные места имеют подготовленные резьбовые отверстия;
- Регулировка с широким диапазоном, осуществляется в трех плоскостях;
- Изгиб рельсы в конечной стадии закрытия позволяет поджать полотно к раме и к порогу, что резко снижает износ всей конструкции;
- Глубокий резиновый буфер, с двух сторон, смягчает фиксацию полотна в конечных стадиях открытия-закрытия;
- На кронштейне ролика установлен ограничитель, исключающий возможность соскока полотна с рельсы;
- Ресурс испытаний - более 200000 циклов.

Ручка-скоба 2420;

Ручка-рычажная W.124-M;

Ручка-рычажная W.124 (удлиненная).

Ручка-планка W.093;

Ручка внешняя W.082;

Ручка внешняя W.082 (удлиненная).
Система нижнего прижима полотна:
- Обеспечивает дополнительное поджатие полотна к раме и порогу, в конечной фазе закрытия;
- Комплект прижимного и направляющего башмаков изготовленных из высокопрочного пластика с металлической вставкой AISI304, устанавливающихся в пол. Производство «ETERNA»;
- Башмаки устанавливаются через широкие пластины AISI304 с разнесенными точками крепления в пол, что позволяет исключить выкрашивание бетона и распределить нагрузку;
- Крепление осуществляется при помощи анкеров, входящих в комлект поставки;
- Направляющая устанавливается на полотне, выполнена из анодированного алюминиевого профиля. Дополнительно защищает нижнюю кромку полотна от механического воздействия.

Замок накладной Lock 57/95

Замок штифтового типа W.150.
- Комплект Н2 – Крепление на пустотелый кирпич, газосиликатный блок
- Комплект Н3 – Крепление на металлоконструкцию
- Комплект Н4 – Крепление с ответной рамой
- Комплект Н5 – Крепление на сэндвич-панель
- Комплект Н6 – Крепление на металлоконструкцию через сэндвич-панель
- Комплект Н7 – Крепление на бетон, полнотелый кирпич





Мы рекомендуем устанавливать МДД(Пл), в тандеме с откатной дверью, для минимизации потерь холода во время работы с открытой камерой при транспортировании на ручных тележках или механизированных погрузчиках.
МДД (Пст) рекомендуется устанавливать без остекления в паре с откатной дверью для минимизации потерь холода во время работы с открытой камерой при транспортировании на ручных тележках, при механизированных погрузчиках, а так же в местах прохождения груза по монорельсам.
Холодильные откатные двери ОД(Пром) производства завода «Ирбис» могут быть изготовлены со следующими дополнительными опциями:
- Эксклюзивные цвета (по запросу заказчика)
- Отбойник плоский
- Швеллер обрамления проема
- Внутренняя рама
- Полотно в разобранном виде
- Внутреннее открывание
- Защитный кожух
- Пороговое исполнение
- Электропривод
- Встроенная РДО(Пром)-800.2000
- Встроенное окно
- Дверь с пандусом
- Монорельс
- Защитное ограждение
